Projets
ARCHITECTURE D/SIGN
28 boulevard Poissonnière 75009 Paris
06 60 52 28 94
contact@dsign.fr
ALAIN DOMINGO ARCHITECTE D.P.L.G.
retour à la galerie
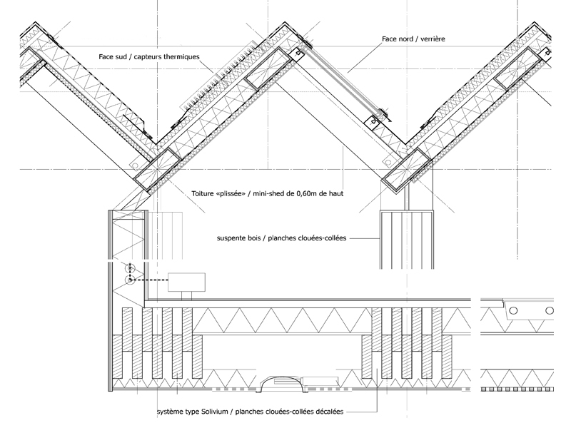
Toiture plissée / planchers suspendus / capteurs solaires / lumière naturelle / Eana